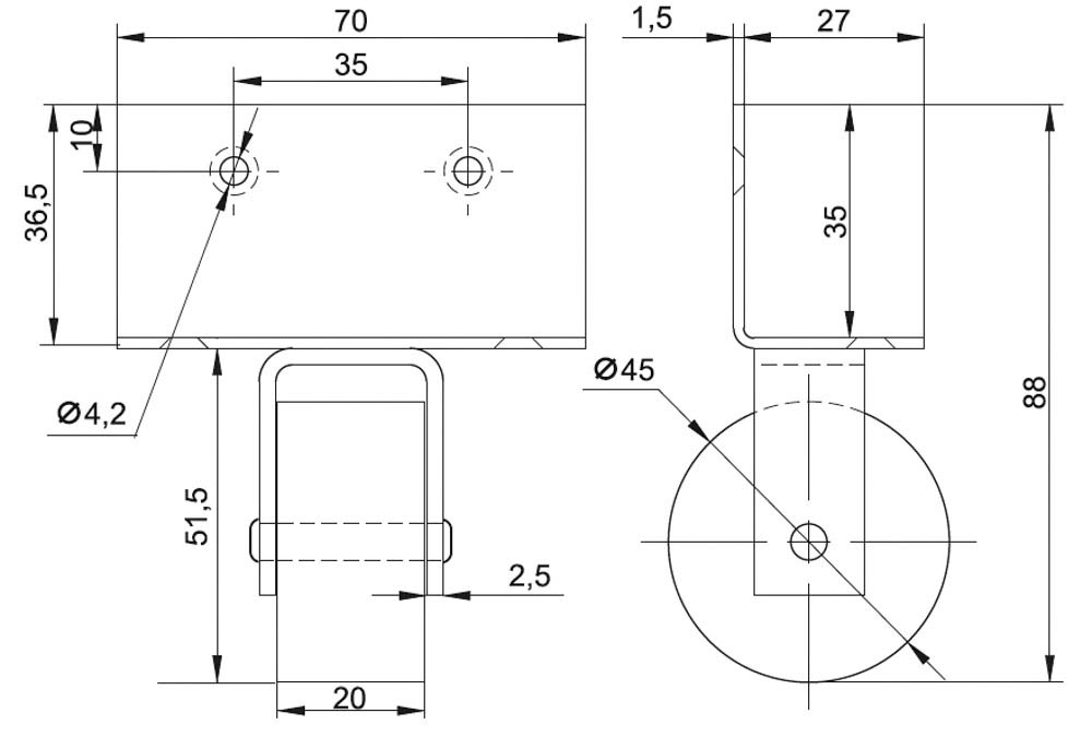
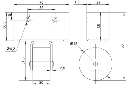
Колёсная опора 351.00.000М